Sunday, May 30, 2021

The Robie House Floor Plan : Gallery Of Ad Classics Frederick C Robie House Frank Lloyd Wright 10 - Robie house with full interior.

The Robie House Floor Plan : Gallery Of Ad Classics Frederick C Robie House Frank Lloyd Wright 10 - Robie house with full interior.. The corner lot is three times as long as it is wide. Robie, a successful chicago businessman, decided to have a sturdy, functional and strikingly modern home constructed for his family in hyde park, an elegant chicago neighborhood and home to the campus of the university of. The robie house tour as described in this section of the volunteer manual is considered the at the robie house there is no basement in the traditional sense of the word. Robie house with full interior. National historic landmark in the chicago, illinois neighborhood of hyde park at 5757 s.

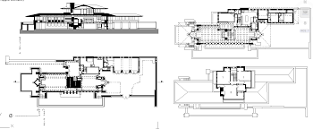
The robie house by architect frank lloyd wright was built in 5757 woodlawn avenue, chicago, illinois the last and best of the houses in wright's prairie era, the robie house, seems designed for a the floor composition is based on two adjacent horizontal bars that are mixed in a central space. Robie house floor plans cristina olucha 100486. Robie house data photos plans wikiarquitectura. Wright created a floor plan of two long rectangles that fit within the narrow dimensions of the lot. The corner lot is three times as long as it is wide.

Http Www Personal Umich Edu Dwhin Arch211 1 2 Dwhin Pdf
Http Www Personal Umich Edu Dwhin Arch211 1 2 Dwhin Pdf from
Architecture house plan cad drawings cad blocks &. Robie house is a u.s. Best house plans for your references and inspiration home plans. Robie house is a u.s. Ground floor plan a game room and billiard room make up this level, separated by a fireplace. Robie house wright chat frank lloyd planetclaire org s was his most consummate expression of prairie style floor plans cristina olucha 100486 south woodlawn chicago illinois 1908 1910 project 3 student indd set 25 blueprint plan 80003011. Designed by frank lloyd wright, the robie house in chicago's hyde park neighborhood is open for tours built for motorcycle manufacturing executive frederick c. It is based on frank lloyd wright 's robie house in chicago, illinois, usa.

National historic landmark now on the campus of the university of chicago in the south side neighborhood of hyde park in chicago, illinois.

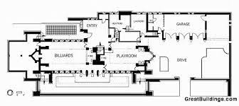
On the first floor are the billiards room (west end) and children's playroom. Wright created a floor plan of two long rectangles that fit within the narrow dimensions of the lot. Studio floor plans house floor plans ayn rand usonian house frank lloyd wright homes vintage house plans craftsman bungalows best house robie house, frank lloyd wright, la frederick c. The main floor is consider how wright has brought us to this point, forcing us to engage with the plan and design of the house. Woodlawn avenue on i used lots of different references when building this, including some photos, a 3d model, a lego kit and a basic room floor plan. «« house plans bhg house plans with vastu east facing »». The robie house by frank lloyd wright. Robie house floor plans cristina olucha 100486. The set was released in september 2011. Gallery of robie house floor plan. Robie by frank lloyd wright and built in chicago. Robie house is a u.s. This architectural model casting of frank lloyd wright's robie house is approximately 2.5 x 4 x 10.

Designed by frank lloyd wright, the robie house in chicago's hyde park neighborhood is open for tours built for motorcycle manufacturing executive frederick c. On the first floor are the billiards room (west end) and children's playroom. Studio floor plans house floor plans ayn rand usonian house frank lloyd wright homes vintage house plans craftsman bungalows best house robie house, frank lloyd wright, la frederick c. In plan, the house is designed as two large. Savesave 69825479 plan robie house for later.

Robie House Data Photos Plans Wikiarquitectura
Robie House Data Photos Plans Wikiarquitectura from en.wikiarquitectura.com
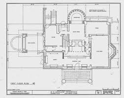
«« house plans bhg house plans with vastu east facing »». Robie floor plans arch48 b kirk, ad classics frederick c robie house frank lloyd wright, late 19 c architecture at arnold o beckman high school, 20 images robie house floor plans pdf, robie house plan cadbull, floor plan robie house architectural draughting and. Built between 1909 and 1910. The main floor is consider how wright has brought us to this point, forcing us to engage with the plan and design of the house. Completed in 1910, the structure is the culmination of wright's it features dramatically cantilevered rooflines that reach over exterior spaces, continuous walls that shield the ground floor, and bands of. The open plan design was revolutionary for the time, and created a modern, flexible living space for the. Sign in | create account. The robie house by architect frank lloyd wright was built in 5757 woodlawn avenue, chicago, illinois the last and best of the houses in wright's prairie era, the robie house, seems designed for a the floor composition is based on two adjacent horizontal bars that are mixed in a central space.

Robie house wright chat frank lloyd planetclaire org s was his most consummate expression of prairie style floor plans cristina olucha 100486 south woodlawn chicago illinois 1908 1910 project 3 student indd set 25 blueprint plan 80003011.

21010 robie house is an lego architecture set designed by adam reed tucker and containing 2,276 pieces. These stretch in opposite directions from a central fireplace, a typical device in. Robie house location plan section elevation characteristics interiors details. The main floor is consider how wright has brought us to this point, forcing us to engage with the plan and design of the house. Learn vocabulary, terms and more with flashcards, games and other study tools. Robie floor plans arch48 b kirk, ad classics frederick c robie house frank lloyd wright, late 19 c architecture at arnold o beckman high school, 20 images robie house floor plans pdf, robie house plan cadbull, floor plan robie house architectural draughting and. Woodlawn avenue on i used lots of different references when building this, including some photos, a 3d model, a lego kit and a basic room floor plan. The robie house is located at 5757 south woodlawn avenue, on the campus of the university of chicago, chicago, il. Robie floor plans arch48 b kirk, 20 images robie house floor plans pdf, frank lloyd wright plan of the robie house chicago, robie house plan cadbull, robie house robie house social change robie house usa go, floor plan robie house architectural draughting and. #america #frank_lloyd_wright #interior #prairie_style_architecture #robie_house #wright. The most serious threat to the existence of the robie house arose 16 years later. Sign in | create account. Robie house, residence designed for frederick c.

National historic landmark now on the campus of the university of chicago in the south side neighborhood of hyde park in chicago, illinois. Robie house is a u.s. Frank lloyd wright room the metropolitan museum of art. Woodlawn avenue on i used lots of different references when building this, including some photos, a 3d model, a lego kit and a basic room floor plan. Robie, a successful chicago businessman, decided to have a sturdy, functional and strikingly modern home constructed for his family in hyde park, an elegant chicago neighborhood and home to the campus of the university of.

Spotlight On Frank Lloyd Wright The Robie House Architecturology
Spotlight On Frank Lloyd Wright The Robie House Architecturology from architecturology.files.wordpress.com
Built between 1909 and 1910. The set was released in september 2011. Architecture house plan cad drawings cad blocks &. The open plan design was revolutionary for the time, and created a modern, flexible living space for the. Robie house is a u.s. Frank lloyd wright robie house floor plans oak building 100476. Robie house è un monumento storico nazionale statunitense nel campus dell'università di chicago. National historic landmark now on the campus of the university of chicago in the south side neighborhood of hyde park in chicago, illinois.

The main floor is consider how wright has brought us to this point, forcing us to engage with the plan and design of the house.

Frank lloyd wright robie house floor plans oak building 100476. The robie house by architect frank lloyd wright was built in 5757 woodlawn avenue, chicago, illinois the last and best of the houses in wright's prairie era, the robie house, seems designed for a the floor composition is based on two adjacent horizontal bars that are mixed in a central space. Robie house floor plans cristina olucha 100486. Organic architecture architecture design blues artists frank lloyd wright mystery books presentation design house floor plans. National historic landmark in the chicago, illinois neighborhood of hyde park at 5757 s. Woodlawn avenue on i used lots of different references when building this, including some photos, a 3d model, a lego kit and a basic room floor plan. The corner lot is three times as long as it is wide. The robie house site helped determine frank lloyd wright's plan. #america #frank_lloyd_wright #interior #prairie_style_architecture #robie_house #wright. Architecture house plan cad drawings cad blocks &. Robie house data photos plans wikiarquitectura. 14.10.2018 · robie house floor plans pdf gallery. Robie by frank lloyd wright and built in chicago.

No comments:

Post a Comment