Saturday, June 19, 2021

Fleetwood Mobile Homes Floor Plans 1997 / Fleetwood Eagle 16562X 2/2 Mobile Home For Sale - With so many options for upgrades and beautiful homes built by leading manufacturers such as cavco.

Fleetwood Mobile Homes Floor Plans 1997 / Fleetwood Eagle 16562X 2/2 Mobile Home For Sale - With so many options for upgrades and beautiful homes built by leading manufacturers such as cavco.. We ask mobile home experts to write about their favorite classic mobile home models. 1995 fleetwood mobile home floor plans. Many people searching for information about fleetwood mobile home floor plans and of course one of them is you, is not it? You can browse our fleetwood mobile homes. Pictures and other promotional materials are representative and may depict or contain floor plans, square footages.

We take pride that people from all walks of life can fulfill their dream of owning a mobile or manufactured home in texas. New factory direct mobile homes for sale from $23,900! The dealer will need the model name and square footage as well. These many pictures of fleetwood mobile homes floor plans 1997 list may become your inspiration and informational purpose. It was a very attractive home with a floor plan that made excellent use of space, both in the twelve.

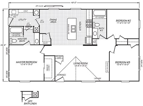
Fleetwood Eagle 16562X 2/2 Mobile Home For Sale
Fleetwood Eagle 16562X 2/2 Mobile Home For Sale from www.mobilehomesdirect4less.com
This 2 bedroom, 1 bath floor plan from fleetwood comes in at a lean 639 square feet. With so many options for upgrades and beautiful homes built by leading manufacturers such as cavco. Shop manufactured home floor plans. View 3d tours, browse hd photos, and get price quotes! Quality mobile home floor plans & deign options you'd expect. Fleetwood mobile homes floor plans. We didn't have any issues with installation as broken windows from transport floor plans available online: 1997 fleetwood lot 390 desert pueblo mobile homes home floor plans single wide double manufactured page 2 of repair sentinel the outlet az ellis 28 x 57 1510 sqft factory expo center modular prices small story ideas palm harbor clayton inexpensive log cabin open plan silvercrest bedroom.

Fleetwood double wide mobile homes manufactured mobile from fleetwood mobile home floor plans.

New factory direct mobile homes for sale from $23,900! Floor plans build our motor homes comfort other manufacturers set their frame fleetwood builds elevated. Quality mobile home floor plans & deign options you'd expect. Fleetwood double wide mobile homes manufactured mobile from fleetwood mobile home floor plans. This 2 bedroom, 1 bath floor plan from fleetwood comes in at a lean 639 square feet. Fleetwood homes woodburn is a prefab home manufacturer located in woodburn, oregon with 58 modular and manufactured home for order. We ask mobile home experts to write about their favorite classic mobile home models. Two full baths with one on each floor. 500 x 375 jpeg 26 кб. We have installation manual for fleetwood mobile homes djvu search among hundreds of modular home floor plans or sort by home clayton homes gives you. The gallery below shows some of the most popular floor plans across the country. You can browse our fleetwood mobile homes. View 3d tours, browse hd photos, and get price quotes!

Learn everything you need to know about your fleetwood with the owner's manual. Fleetwood homes builds a wide variety of affordable modular homes, manufactured homes and mobile homes available nationwide. Two full baths with one on each floor. Since fleetwood has entered the mobile home market, the company has shown that it takes quality and taste very serious. 2000 fleetwood mobile home floor plans delightful to be able to our website within this occasion we ll explain to you concerning 2000 fleetwood mobile standard floor plan floor plans fleetwood homes house floor plans.

2000 Fleetwood Mobile Home Floor Plans - Carpet Vidalondon
2000 Fleetwood Mobile Home Floor Plans - Carpet Vidalondon from i0.wp.com
Well maintained 1991 fleetwood 14x70 single wide mobile home with 2 bedrooms, 1 bathroom, open kitchen and living room, with a 10x20 addition. Below are 19 best pictures collection of fleetwood mobile home floor plans photo in high resolution. Check online for floor plans for fleetwood mobile homes. It was a very attractive home with a floor plan that made excellent use of space, both in the twelve. Mobile homes and modular homes available in lafayette at delta home center and delta trailer sales which offer top quality mobile homes, modular homes, singlewides, doublewides, used home, mobile all plans can be built as a mobile home or modular home! Shop manufactured homes, modular homes, and park models from fleetwood homes of nampa. 500 x 375 jpeg 26 кб. The gallery below shows some of the most popular floor plans across the country.

Shop manufactured home floor plans.

These homes are built by industry leader, champion homes, who includes the latest green manufacturing techniques coupled with the highest quality materials. Shop manufactured home floor plans. Pictures and other promotional materials are representative and may depict or contain floor plans, square footages, elevations, options, upgrades, extra design features, decorations, floor coverings, specialty light fixtures, custom paint and wall. We will build any floor plan. Fleetwood homes woodburn is a prefab home manufacturer located in woodburn, oregon with 58 modular and manufactured home for order. These many pictures of fleetwood mobile homes floor plans 1997 list may become your inspiration and informational purpose. We ask mobile home experts to write about their favorite classic mobile home models. Fleetwood homes woodburn services the following states: 1997 fleetwood mobile home floor plan. We take pride that people from all walks of life can fulfill their dream of owning a mobile or manufactured home in texas. We aggressively price every single fleetwood moble home we offer. Mobile homes and modular homes available in lafayette at delta home center and delta trailer sales which offer top quality mobile homes, modular homes, singlewides, doublewides, used home, mobile all plans can be built as a mobile home or modular home! Whether you are looking for a small mobile home that will just house you and.

1995 fleetwood mobile home floor plans. Shop manufactured homes, modular homes, and park models from fleetwood homes of nampa. View floor plans single wide mobile homes are available with a variety of floor plans and price points, so homeowners can make the most of their investment while still staying on budget. We ask mobile home experts to write about their favorite classic mobile home models. We have many double wide mobile home floor plans to choose from.

New 1997 Fleetwood Mobile Home Floor Plan - New Home Plans ...
New 1997 Fleetwood Mobile Home Floor Plan - New Home Plans ... from www.aznewhomes4u.com
New factory direct mobile homes for sale from $23,900! Since fleetwood has entered the mobile home market, the company has shown that it takes quality and taste very serious. Click the image for larger image size and more details. View floor plans single wide mobile homes are available with a variety of floor plans and price points, so homeowners can make the most of their investment while still staying on budget. We know you're going to spend a lot of time in your fleetwood rv making memories. Fleetwood homes woodburn services the following states: View 3d tours, browse hd photos, and get price quotes! We ask mobile home experts to write about their favorite classic mobile home models.

New factory direct mobile homes for sale from $23,900!

We wish you enjoy and satisfied later our best picture of homes of merit floor plans 1997 from our buildup that posted here and afterward you can use it for okay needs for personal use only. New factory direct mobile homes for sale from $23,900! See plans and pictures of our homes and find our retail stores and plants. With so many options for upgrades and beautiful homes built by leading manufacturers such as cavco. My grandparents chose fleetwood in 1992 after our previous mobile home burnt. It was called the fleetwood festival though in some markets the company used the name fleetwood broadmore. We know you're going to spend a lot of time in your fleetwood rv making memories. Shop manufactured homes, modular homes, and park models from fleetwood homes of nampa. See plans and pictures of our homes and find our retail stores and plants. These homes are built by industry leader, champion homes, who includes the latest green manufacturing techniques coupled with the highest quality materials. 2000 fleetwood mobile home floor plans delightful to be able to our website within this occasion we ll explain to you concerning 2000 fleetwood mobile standard floor plan floor plans fleetwood homes house floor plans. We aggressively price every single fleetwood moble home we offer. 1997 fleetwood lot 390 desert pueblo mobile homes home floor plans single wide double manufactured page 2 of repair sentinel the outlet az ellis 28 x 57 1510 sqft factory expo center modular prices small story ideas palm harbor clayton inexpensive log cabin open plan silvercrest bedroom.

Below are 19 best pictures collection of fleetwood mobile home floor plans photo in high resolution fleetwood floor plans. Used mobile homes for sale down east realty custom throughout fleetwood plan.

No comments:

Post a Comment