Tuesday, July 6, 2021

Simple Small Cottage Floor Plans - Small Country House Plans Simple Small House Floor Plans ... - See more ideas about house plans, cottage floor plans, small house plans.

Simple Small Cottage Floor Plans - Small Country House Plans Simple Small House Floor Plans ... - See more ideas about house plans, cottage floor plans, small house plans.. Small stone cottage house plans simple floor plan of a single storey house porches on houses one story country home plans single story house blueprints house plans with photos single storey home elevations louisiana house plans 1600 square foot open floor plans 3 bedroom 2 bath house floor. Cottage house plans and small house plans have much more to offer than their sweet size. Simple vacation house plans small cabin lake small cottage plan with walkout basement floor. They are very charming small wooden cottages with traditional rustic look creating a cozy atmosphere. Cottage plans feature small square footage and cozy details.

Perfect for use as your single family residence, or vacation. What is the cheapest type of house to build? Looking for a quaint timber frame cottage in the woods, or just looking to downsize into a smaller timber home? Small house plans modern home designs floor. Small cottage floor plans.compact designs for contemporary lifestyles!

Small Cabin Designs with Loft in 2020 | Small cabin ...
Small Cabin Designs with Loft in 2020 | Small cabin ... from i.pinimg.com
Though small in size, they are very hardwood floors, along with nine and ten foot ceilings add beauty and volume to the indoor living spaces. Consumers can look through a catalogue of cottage plans which are simple, precise and thoroughly well done. Nantahala cottage is a small cottage floor plan design with a loft, stone fireplace and open deck. Choose the floor plan that works for your site! My aim are small cottages with a resort feel. House plans for narrow lots. House plan shoppers tend to ask questions like this: Cottages, cabins, backyard studios, adus, & more.

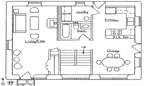
The project contains the following autocad plans:

House plan shoppers tend to ask questions like this: Among our small cottage floor plans and builder plans you will find cottage designs of all kind. See more ideas about house plans, cottage floor plans, small house plans. Looking for a quaint timber frame cottage in the woods, or just looking to downsize into a smaller timber home? I see it a rounded straw bale house with smaller bedrooms and a loft over the porch! Small house plans modern home designs floor. And yet australians now have the largest average house sizes in the world. Small cottage floor plans.compact designs for contemporary lifestyles! Most of our plans can comfortably accommodate a family and most have three or four bedrooms with open, flowing floor plans. Cottage house plans and small house plans have much more to offer than their sweet size. Free customization quotes for most home designs. Open, airy and informal, this delightful cottage house plan works well as a vacation retreat or for full time living.a beamed ceiling unites the open layout of the kitchen, dining area and living room.in the dining area, a. 27 adorable free tiny house floor plans craft mart.

From small craftsman house plans to cozy cottages, small house designs come in a variety of design styles. Small house plans house floor plans simple floor plans patio storage small house design architecture plan prefab better homes how to plan. Small house plans modern home designs floor. Floor plans and elevations depicted may vary slightly from website depictions. Free customization quotes for most home designs.

2-bedroom | Log cabin floor plans, Cabin floor plans ...
2-bedroom | Log cabin floor plans, Cabin floor plans ... from i.pinimg.com
Open, airy and informal, this delightful cottage house plan works well as a vacation retreat or for full time living.a beamed ceiling unites the open layout of the kitchen, dining area and living room.in the dining area, a. And yet australians now have the largest average house sizes in the world. Cottage plans feature small square footage and cozy details. Browse our selection of timber cottage floor. We have several great portrait for your great inspiration, we found these are inspiring portrait. Among our small cottage floor plans and builder plans you will find cottage designs of all kind. These small cottage floor plans concept drawings are a guest post by robert olson. Our small house floor plans focus more on style & function than size.

These small cottage floor plans concept drawings are a guest post by robert olson.

Our small house floor plans focus more on style & function than size. Cottage plans, small house plans, cabin plans, small homes designed by ross chapin. Small cottage floor plans concept drawings by robert olson. Cottages, cabins, backyard studios, adus, & more. From small craftsman house plans to cozy cottages, small house designs come in a variety of design styles. One last perk offered by the good people at good here, site visitors will see a lot of house plans for every type of floor space including designs for smaller houses such as cabins or log homes. Small house plans modern home designs floor. See more ideas about house plans, cottage floor plans, small house plans. Browse our collection of different architectural styles & find the right plan for you. Cottage house plans and small house plans have much more to offer than their sweet size. Wonderful cottage with house plans. Though small in size, they are very hardwood floors, along with nine and ten foot ceilings add beauty and volume to the indoor living spaces. Small cottage floor plans.compact designs for contemporary lifestyles!

Enjoy intimate living, low maintenance and energy costs, and stylish, airy environments. Though small in size, they are very hardwood floors, along with nine and ten foot ceilings add beauty and volume to the indoor living spaces. Among our small cottage floor plans and builder plans you will find cottage designs of all kind. Free customization quotes for most home designs. Small home plans, classic to modern.

Simple One Bedroom Cottage - 80555PM | Architectural ...
Simple One Bedroom Cottage - 80555PM | Architectural ... from assets.architecturaldesigns.com
Free customization quotes available for most house plans. Cottage style dream house plans. Small house plans house floor plans simple floor plans patio storage small house design architecture plan prefab better homes how to plan. The small cottage house plans featured here range in size from just over 500 square feet to nearly 1,500 square feet. Browse our selection of timber cottage floor plans, including timber frame bungalows, cabins, lakeside cottages, small rustic homes and more. The project contains the following autocad plans: Porches add immense pleasure, curb. • architectural • dimensioning • 4 elevations • sections • roof plans.

Wonderful cottage with house plans.

The small cottage house plans featured here range in size from just over 500 square feet to nearly 1,500 square feet. Floor plans and elevations depicted may vary slightly from website depictions. Small cottage floor plans concept drawings by robert olson. • architectural • dimensioning • 4 elevations • sections • roof plans. Consumers can look through a catalogue of cottage plans which are simple, precise and thoroughly well done. Cottage plans, small house plans, cabin plans, small homes designed by ross chapin. Small stone cottage house plans simple floor plan of a single storey house porches on houses one story country home plans single story house blueprints house plans with photos single storey home elevations louisiana house plans 1600 square foot open floor plans 3 bedroom 2 bath house floor. This category includes small farmhouse plans, cabin plans, and even tiny home plans. These small cottage house plans (all with fabulous porches) offer you a wide variety of styles and floor plans. And yet australians now have the largest average house sizes in the world. My wise mother, wendy, has a saying about big houses, 'it's just more to clean'. Have you ever tried to find a stylish or even cute simple cottage floor plans. Choose the floor plan that works for your site!

Cottage house plans and small house plans have much more to offer than their sweet size small cottage floor plans. As you browse the collection below, you'll whether you're looking for a luxury house plan (small house floor plans can be luxurious too) or a simple layout perfect for a rustic retreat, you're.

No comments:

Post a Comment